
104氏、マンション値引き戦に挑む
2010.11.2 UP (注:値引き戦は約1年前の出来事)
以前にマンションに惹かれた、という記事を執筆してから1年以上経過してしまったのである。
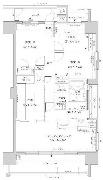
以前に104氏が大変に心惹かれた物件の間取りをご覧いただこう。


御庭が付いている少し広めの4LDKのマンションである。
104氏は、この物件に夢をみた。
バイク置き場からバリアフリーで繋がる通路を通り、バイクを御庭に運んで整備が出来る物件。
その後バイクをガラス越しにリビングから眺めながら麦酒を飲むというのが細やかな夢であったらしい。
しかし、現実は容赦をしてくれなかったのである。
その顛末をいまここに記そうではないかと筆者は思う。
なぜ今更の執筆になったかという、無粋な質問が読者諸賢にはお在りかと思われるが今はその言の葉を抛るのを御遠慮願いたい。
なにしろそれは当時104氏の自宅に執筆場所を設けようと目論んでいた筆者にとっても大変に涙ちょちょ切れる事の顛末であったのであるのだから。
1年前、104氏は真剣にこの物件を購入しようとしたのである。
間違いなく、それは事実であったことを筆者は確認済みである。
南向きに聳え立つマンションの東側角部屋。
お部屋の南側は勿論、東側にも御庭がつくというこの物件の間取りは居住空間が90u強(結構広い方)である。
また、専用御庭面積が67u強(マンションでは在り得へんくらい広い!)。
それらを合計すると、55坪超えである!
お風呂にはミストサウナがつき、フローリングは床暖房仕様である。
駅まで徒歩10分、
フィットネスクラブへ徒歩3分、
超大型ショッピングモールまで徒歩4分、
24時間食料品が調達できる大型スーパーまでも徒歩4分である。
そして、いずれ愛息たちが通うであろう小学校、中学校までも徒歩10分とかからない。
これ以上の物件があるだろうか?
―――いや、ないやわいね!!!―――
声を大にして104氏が叫ぶ。
しかし、やっと心の整理がついたのでココに顛末を記すとすれば、この物件の入手に104氏は失敗したのである。
通常マンションと言うものは、高層階と、(庭付きの場合)1階から売れていくらしいのである。
この定石に外れずして、104氏が心惹かれたマンション物件もそういう傾向が見られたのである。
高層階は(104氏の所得に対して)超高額であるために初めからアウトオブ眼中であったようである。
だから104氏は値引き交渉で辛うじて手が届きそうな1階御庭付きの当物件のみに的を絞ったのである。
幸いにして、ヨメ様も当物件を気に入ってくれており、後は104氏の営業手腕にすべてが委ねられた・・・という背景であった。
―――営業畑一筋で生きてきた俺のパフォーマンスをついにプライベートに発揮する時がきたようやわいね!―――
勢いきって交渉の場へ勇み赴いた104氏であった。
しかし、交渉は難航を極めた。
当物件が販売を開始して間もないことに加え、販売側も広い御庭をプレミアムオプションと認識していたのである。
104氏がいろんな醜い汁を迸らせながら、
全身全霊、
営業としての誇りをかけ交渉した結果、
引き出した値引き額は104氏の年収に少し届かないくらいの金額であった。
―――うむ、まずまずの結果であろう!―――
孤独な戦いを制した気持ちになって、胸を張ってヨメ様の待つ自宅へ帰った104氏であった。
帰るやいなや、戦績をヨメ様に報告する104氏。
104氏があらかた語り終えたところでヨメ様が言い放った。
―――――こんな価格(←値引後の当物件販売価格)では話にならへんわっ!―――――
ナンダッテ━━━━(゚д゚;)━━━━ッ!!
鋭く深く104氏のプライドは抉りとられた。
ヨメ様は続けて言い放つ。
―――――本気で欲しいと思っとるん? あなたの収入は決まってるんでしょ? 生半可な覚悟じゃマイホームなんて持てへんよ!―――――
ヾ(゚д゚;) ゴッ、ゴメン
どうやらヨメ様の想定している購入価格ハードルはとっても高い(想定マンション購入価格が安い)らしい、とこの時104氏は初めて気付いたのである。
一度、ある程度の場所へ落ち着いてしまった交渉金額を再度大幅に削り取ることは本当に大変なことである。
これは、常日頃から営業を生業とする104氏が誰よりもその身をもって理解している理である。
その後、価格交渉の追加成果は実ることがなかった。
資金調達面でヨメ様との無益な争いも多発した。
『マンション VS 戸建て』戦争という無間地獄に陥ったりもした。
価格交渉の度に醜い汁を迸らせ、ヨメ様との攻防に苦い涙を溢れさせ、104氏は疲労困憊した。
やがてマイホーム購入に向かう全ての行動を起こすことが面倒臭くなっていったのである。
こうして筆者の書斎が104氏購入マンション物件の中に新設されるという美味しい話は水泡に帰したのである。
―――どうせあの物件には縁がなかったんよ、わざわざ苦しい思いをして何千万円も失うことはないやわいね!―――
104氏は、さみしそうにそう筆者の前で呟いたのである。
ここに儚く、104氏のマイホームを購入する夢は潰えたのである。